News
Zwei neue Baulose im NOI Techpark: Landesregierung gibt grünes Licht
Bei ihrer ersten ordentlichen Sitzung außerhalb der Sitzungsräume im Palais Widmann hat die Landesregierung heute (16. April) über das aktualisierte Raumprogramm und eine Erweiterung um zwei Baulose im NOI Techpark entschieden. Die Planung dafür wurde der NOI AG zugewiesen, welche durch ihre Eigenmittel die Baumodule realisieren wird. "Bildung und Innovation sind Zukunftsinvestitionen. Um diese zu forcieren, bedarf es einer funktionierenden Forschungsinfrastruktur. Dieser Standort, der NOI Techpark, ist das pulsierende Herz dieser Idee, an dem wir Kompetenzen aufbauen", betonte LH Kompatscher heute. Entscheidend sei dabei die Nähe zur Praxis und zu den Bedürfnissen der heimischen und internationalen Betriebe. "Wir investieren mit diesen Einrichtungen in die Zukunft Südtirols und jene unserer Jugend", sagte Kompatscher.
Forschungsinfrastruktur NOI Techpark wird ausgebaut
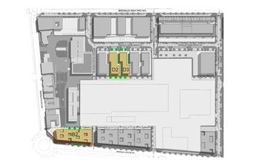
Auf insgesamt 20.000 m2 bietet der NOI Techpark fortan Platz für Forschung und Innovation. Ein Teil der neuen Räumlichkeiten ist für die neue Fakultät für Ingenieurswissenschaften der Freien Universität Bozen (Gebäude B2) vorgesehen. Deren Räumlichkeiten mussten nach der Festlegung der inhaltlichen Details durch eine internationale Expertengruppe erweitert werden, wodurch die geplanten Labors für das Versuchszentrum Laimburg verschoben wurde.
In den Baulosen D2 und D3 im Inneren des NOI Techpark-Areals sollen neben den Laimburg-Labors Räumlichkeiten für private Unternehmen zur Verfügung stehen. Mit der Fertigstellung dieser Bauvorhabens ist in den Jahren 2023 und 2024 zu rechnen. "Die beiden Module sind Teil eines Gesamtentwicklungsplans, mit welchem in verschiedenen, aufeinanderfolgenden Bauphasen eine Fläche von 12 Hektar in Bozen Süd bebaut wird. Somit entsteht hier ein ganzes neues Stadtviertel im Zeichen der Innovation", blickt Ulrich Stofner, Geschäftsführer des NOI Techpark, positiv in die Zukunft. "Die neuen und bestehenden Forschungsstätten schaffen Arbeitsmöglichkeiten für hochqualifizierte Menschen, was schließlich auch die Wettbewerbsfähigkeit unserer Wirtschaft enorm stärkt", hob der Landeshauptmann hervor.
Zum Download:
Video Erweiterung NOI Techpark
Audio Erweiterung NOI Techpark
- Die Landesregierung hat heute ihre Sitzung im NOI Techpark abgehalten. Foto: LPA/mb [JPG 15 KB]
- LH Kompatscher stellte heute die Erweiterungspläne für den NOI Techpark vor. Foto: LPA/Ivo Corrà [JPG 11 KB]
- Auf dem NOI-Gelände in Bozen Süd entstehen neue Gebäude für die Fakultät für Ingenieurswissenschaften (B2) sowie für weitere Forschungsstätten (D2 und D3). [JPG 13 KB]
